Inspiracje z przeszłości: Jak babcia tworzyła przytulny dom?
Pamiętacie domy Waszych babć? Pełne ciepła, ręcznie robionych ozdób i mebli z duszą. Bez drogich projektantów, za to z sercem i pomysłowością. Dziś, korzystając z ich mądrości i nowoczesnych rozwiązań, możemy stworzyć wnętrze idealne – osobiste, ekologiczne i piękne.
Witajcie w MoodRoom.pl! Jestem Karolina Wójcik, projektantka wnętrz z Krakowa. Moją pasją są kamienice, vintage meble i naturalne materiały. Wierzę, że dom powinien odzwierciedlać duszę mieszkańców. Razem odkryjemy, jak połączyć stare z nowym, jak wykorzystać kolory i faktury, by stworzyć przestrzeń pełną harmonii i pozytywnej energii.
Zaczynamy!
Szycie zasłon DIY: Prowansalski urok w Twoim domu
Styl prowansalski to kwintesencja francuskiej wsi. Kojarzy się z lawendowymi polami, słońcem i beztroską. Chcesz wprowadzić ten klimat do swojego domu? Zacznij od zasłon! Uszycie ich samodzielnie jest prostsze, niż myślisz.
Prowansalskie zasłony w 2026 roku to przede wszystkim naturalne tkaniny, delikatne wzory i jasne kolory. Idealne materiały to len, bawełna i batyst. Są przewiewne, lekkie i pięknie się układają.

Co będzie potrzebne do szycia? Oprócz tkaniny i maszyny do szycia, przygotuj:
- Nici w kolorze tkaniny lub kontrastowe, do ozdobnych przeszyć.
- Nożyczki krawieckie.
- Papier do wykrojów.
- Centymetr krawiecki.
- Mydło krawieckie lub pisak do tkanin.
- Szpilki.
- Opcjonalnie: ozdobne wstążki, koronki, guziki.
Kupując tkaninę, zawsze weź jej trochę więcej, niż wynika z obliczeń. Dodatkowe 10-15% zapasu przyda się na ewentualne poprawki i wykończenia.

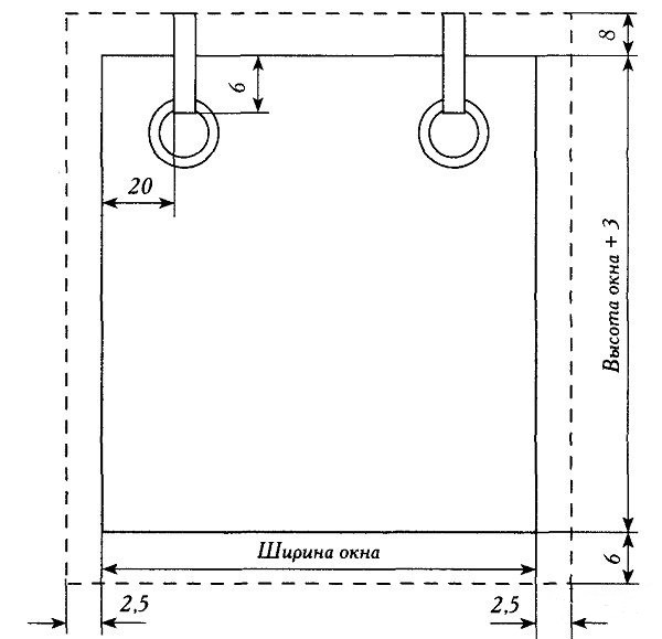
Wymiary? Standardowa długość zasłony to około 3 metry. Oczywiście, najlepiej zmierzyć okno i dopasować długość do swoich potrzeb. Jeśli szyjesz zasłony na prezent i nie znasz wymiarów okna, 3 metry to bezpieczny wybór.
Możesz uszyć proste, prowansalskie zasłonki składające się z dwóch równych części, połączonych poprzeczną listwą. Szerokość każdej części powinna wynosić co najmniej 80 cm, a wysokość listwy – 15-20 cm. Takie zasłony w stylu rustykalnym idealnie sprawdzą się w kuchni lub jadalni.

Na pierwszy rzut oka, szycie zasłon może wydawać się trudne. Jednak z odpowiednim przygotowaniem i odrobiną cierpliwości, każdy może stworzyć piękne i funkcjonalne zasłony do swojego domu. Kluczem do sukcesu jest dokładny wykrój.
Jak zrobić wykrój na prowansalskie zasłony?
- Złóż papier do wykrojów na pół. Rozłóż go na płaskiej powierzchni.
- Narysuj kontury przyszłych części zasłony, uwzględniając połowę ich rzeczywistego rozmiaru.

Przenoszenie wykroju na tkaninę. Pamiętaj o dodaniu zapasów na szwy! Tam, gdzie zasłona będzie przymocowana do karnisza, dodaj minimum 5 cm. Na pozostałe szwy wystarczy 1 cm. Użyj szpilek, aby przymocować wykrój do tkaniny i ostrożnie wytnij elementy.
Pamiętaj, że prowansalskie zasłony w 2026 powinny być uszyte z naturalnych tkanin.

- Przenieś wykrój na tkaninę. Nie zapomnij o zapasach na szwy! Na górze, gdzie zasłona będzie przymocowana do karnisza, dodaj minimum 5 cm. Na pozostałe szwy wystarczy 1 cm.

- Zepnij brzegi materiału szpilkami. Następnie zszyj je na maszynie. Postaraj się, aby szwy były równe. Możesz ozdobić krawędzie satynowymi wstążkami lub koronkami.

Nie zapomnij o podwiązkach! Możesz je uszyć z resztek materiału lub wykorzystać ozdobne wstążki. Podwiązki przydadzą się do upinania zasłon w ciągu dnia. Dzięki temu wpuścisz więcej światła do pomieszczenia.
Wybierając len na zasłony, zwróć uwagę na jego gramaturę. Lżejszy len (poniżej 200 g/m²) będzie bardziej przejrzysty i zwiewny. Grubszy len (powyżej 250 g/m²) zapewni większą prywatność i lepszą ochronę przed słońcem.
Zasłony w stylu rustykalnym „Kantry”
Styl rustykalny, podobnie jak prowansalski, stawia na naturalność i prostotę. To idealny wybór dla osób, które cenią sobie przytulną atmosferę i bliskość natury.
Zasłony w stylu rustykalnym to przede wszystkim naturalne tkaniny, stonowane kolory i proste wzory. Królują tu kratka, kwiatowe motywy i motywy roślinne. Zapomnij o błyszczących materiałach i krzykliwych kolorach!

Wybierając materiał na zasłony w stylu rustykalnym, postaw na:
- Naturalne tkaniny: len, bawełna, wełna.
- Stonowane kolory: beże, brązy, szarości, zgaszone zielenie.
- Wzory: kratka, kwiaty, motywy roślinne.

Jak obliczyć ilość potrzebnego materiału? Zmierz okno! Długość zasłony mierz od karnisza do parapetu (lub niżej, jeśli chcesz zasłonić grzejnik). Dodaj 6 cm na podwinięcie dołu i 3 cm na podwinięcie góry.
Szerokość zasłony zależy od długości karnisza. Pomnóż długość karnisza przez 1,5 lub 2, w zależności od tego, jak bardzo chcesz zmarszczyć zasłonę.

Szycie zasłon w stylu rustykalnym. Najprostszy sposób to uszycie zasłon z prostokątnych paneli. Zamiast szpilek możesz użyć długiego ściegu na maszynie, aby tymczasowo podwinąć brzegi. Taśmę do marszczenia przyszyj do podwiniętego brzegu.
Pamiętaj o bezpieczeństwie! Upewnij się, że zasłony nie stanowią zagrożenia dla dzieci i zwierząt. Unikaj długich sznurków i luźnych elementów, które mogłyby zostać połknięte.

Przystępując do obróbki bocznego szwu, schowaj krawędź taśmy do wewnątrz szwu. Koniec sznurka powinien wystawać na zewnątrz. Pociągając za sznurek, możesz regulować marszczenie zasłony. Na koniec obrób dół zasłony i powieś ją na oknie.
Rustykalne zasłony w 2026 to nie tylko element dekoracyjny. To również sposób na stworzenie przytulnej i relaksującej atmosfery w Twoim domu.

Rustykalne zasłony: Idealne do każdego pomieszczenia?
Styl rustykalny jest uniwersalny! Można go zastosować w różnych pomieszczeniach, dostosowując wzory i kolory do charakteru wnętrza.
Na przykład, do kuchni idealnie pasują krótkie zasłonki w kratkę lub z motywami owoców i warzyw. Do salonu możesz wybrać długie, lniane zasłony w stonowanych kolorach. W sypialni sprawdzą się zasłony z grubszej tkaniny, które zapewnią prywatność i zaciemnienie.

Zasłony kuchenne: „Rzymskie” i „Cafe”
Szukasz inspiracji na zasłony do kuchni? W 2026 roku dużą popularnością cieszą się zasłony typu „cafe”. To krótkie zasłonki, które zasłaniają tylko dolną część okna. Idealne do kuchni, bo wpuszczają dużo światła, a jednocześnie zapewniają prywatność.
Aby uszyć zasłony „cafe”, wystarczy przymocować drążek lub sznurek w połowie okna. Następnie uszyć dwie małe zasłonki i zawiesić je na drążku. Górną część okna możesz ozdobić lambrekinem lub krótką roletą.

Inną popularną opcją są rolety rzymskie. Są eleganckie, praktyczne i łatwe do uszycia. Możesz je uszyć z dowolnej tkaniny, dopasowując kolor i wzór do wystroju Twojej kuchni.
Wybierając tkaninę na zasłony kuchenne, zwróć uwagę na jej właściwości. Powinna być łatwa w czyszczeniu i odporna na zabrudzenia. Idealne materiały to bawełna z domieszką poliestru lub len.

Zasłony z klasą: Długie i dekoracyjne
Długie zasłony z podwiązkami to klasyka, która zawsze wygląda elegancko. Możesz je uszyć z dowolnej tkaniny, dopasowując kolor i wzór do charakteru pomieszczenia. Dodaj ozdobne elementy, takie jak koraliki, satynowe wstążki lub falbanki, aby nadać zasłonom indywidualny charakter.
Jeśli lubisz styl glamour, wybierz zasłony z weluru lub aksamitu. Te luksusowe tkaniny dodadzą Twojemu wnętrzu szyku i elegancji. Możesz je ozdobić kryształkami lub frędzlami.

Pamiętaj, że zasłony to ważny element wystroju wnętrza. Wybierając odpowiedni kolor, wzór i materiał, możesz stworzyć niepowtarzalną atmosferę w swoim domu. Nie bój się eksperymentować i łączyć różne style! Stwórz przestrzeń, w której będziesz czuć się komfortowo i szczęśliwie.
Przed przystąpieniem do szycia zasłon, upewnij się, że masz odpowiednie narzędzia i umiejętności. Jeśli nie czujesz się na siłach, poproś o pomoc krawcową.
Aranżacja okien w 2026 roku to zabawa kolorem i fakturą. Modne są zarówno klasyczne, długie zasłony, jak i nowoczesne rolety rzymskie. Najważniejsze, aby zasłony pasowały do Twojego stylu i potrzeb.
Koszty? Proste zasłony DIY mogą kosztować od 50 PLN (tania bawełna) do 200 PLN (len). Gotowe zasłony w sklepach (IKEA, JYSK) to wydatek od 100 PLN do 500 PLN za komplet. Szycie na zamówienie u krawcowej to koszt od 300 PLN w górę, w zależności od materiału i stopnia skomplikowania.
Kolory i nastrój: Jak barwy wpływają na Twoje samopoczucie?
Kolory mają ogromny wpływ na nasze samopoczucie. Wiedzą o tym projektanci wnętrz i wykorzystują tę wiedzę, aby tworzyć przestrzenie, które sprzyjają relaksowi, koncentracji lub pobudzają do działania.
System NCS (Natural Color System) to narzędzie, które pozwala precyzyjnie określić kolor i jego właściwości. Dzięki NCS możesz wybrać kolory, które idealnie pasują do Twojego wnętrza i wpływają pozytywnie na Twoje samopoczucie. Na przykład, NCS S 2005-Y20R to ciepły, przytulny odcień beżu, idealny do sypialni lub salonu.
Pantone na 2026 rok wybrał odcienie inspirowane naturą, pełne optymizmu i nadziei. Te kolory dodadzą energii Twojemu wnętrzu i sprawią, że poczujesz się radośnie.
Stare z nowym: Vintage i IKEA w harmonii
Nie bój się łączyć starego z nowym! Meble vintage z duszą świetnie komponują się z nowoczesnymi meblami z IKEA. Kluczem do sukcesu jest zachowanie umiaru i dbałość o detal.
Na przykład, możesz zestawić starą, drewnianą komodę z minimalistycznym biurkiem z IKEA. Dodaj do tego kilka roślin i ręcznie robionych ozdób, a stworzysz wnętrze pełne charakteru i ciepła. Pamiętaj, że patyna na starych meblach to ich atut! Nie próbuj jej ukrywać.
Ekologiczne rozwiązania: Zero Waste w Twoim domu
Dbaj o środowisko! Wybieraj meble i dodatki wykonane z naturalnych materiałów, takich jak drewno, bambus, len i bawełna. Unikaj plastiku i sztucznych tworzyw.
Daj drugie życie starym meblom! Zamiast wyrzucać, odnów je i pomaluj na nowy kolor. Możesz również wykorzystać stare tkaniny do uszycia poduszek lub zasłon. To świetny sposób na zaoszczędzenie pieniędzy i zmniejszenie ilości odpadów.
Wybieraj farby i lakiery z certyfikatem ekologicznym. Są bezpieczne dla zdrowia i środowiska.
| Rozwiązanie | Opis | Cena (PLN) |
|---|---|---|
| Zasłony lniane (DIY) | Uszyte samodzielnie z naturalnego lnu. | 50-200 (koszt materiału) |
| Rolety rzymskie (IKEA) | Gotowe rolety rzymskie w różnych rozmiarach i kolorach. | 150-400 |
| Farba ekologiczna | Farba do ścian z certyfikatem ekologicznym. | 80-150 (za litr) |
| Meble vintage (odnowione) | Komoda lub stół po renowacji. | 200-1000 (w zależności od stanu i wielkości) |
Powyższa tabela prezentuje przykładowe koszty rozwiązań. Ceny mogą się różnić w zależności od sklepu, materiału i stopnia skomplikowania projektu. Inwestycja w ekologiczne rozwiązania to inwestycja w przyszłość! Twoje zdrowie i środowisko będą Ci wdzięczne.



O wow, sam bym nie wpadł, że zasłony mogą tak odmienić pokój! Babcia zawsze mówiła, że „szmata czyni chatę”, ale myślałem, że przesadza. Chyba czas wyjąć starą maszynę do szycia i pokazać babci, że wnuczek też potrafi! 💪🧵
Ech, „prowansalski szyk”… To już nie można po prostu mieć brudnych okien? Babcia przynajmniej nie udawała, że ten jej „styl” to nie wynik lenistwa i braku pieniędzy. No nic, idę szukać jakiegoś obrusu na przecenach, może coś z tego wyjdzie.
DIY zasłony jak u babci? Pewnie, bo komu potrzebne są nowoczesne rozwiązania, skoro można tkwić w sentymentalnym marazmie? Prowansja w 2026? Brzmi jak ponury żart na temat postępu. No ale dobra, szyję, niech stracę, może chociaż kot będzie miał niezłe drapaki.
Pamiętam te zasłony u babci! Zawsze wydawało mi się to takie… babcine. Ale teraz, myślę, że w połączeniu z nowoczesnym wnętrzem, to może być całkiem ciekawy kontrast. Spróbuję! Może odzyskam trochę wspomnień z dzieciństwa.
Zasłony jak u babci? Brzmi cudownie! Moja babcia miała takie koronkowe, ręcznie robione. Pamiętam, jak słońce przez nie prześwitywało, tworząc piękne wzory na podłodze. Może w końcu znajdę czas, żeby takie uszyć. Tylko muszę poszukać starych zdjęć dla inspiracji!