„Styl rustykalny to nie tylko sielskie motywy; to powrót do korzeni i natury. Zobaczmy, jak tchnąć ducha polskiej wsi w twoją kuchnię w bloku.” Projektowanie kuchni to wyzwanie. Wymaga przemyślenia każdego detalu. Chodzi o to, by stworzyć przestrzeń funkcjonalną i piękną. Taką, w której z przyjemnością będziesz gotować i spędzać czas.
Jako projektant wnętrz z Krakowa, uwielbiam łączyć stare z nowym. Wierzę, że kuchnia powinna odzwierciedlać twoją osobowość. Powinna być skrojona na miarę Twoich potrzeb i stylu życia. Kiedy projektowałem studio w sercu krakowskiego Starego Miasta, musiałem zmierzyć się z podobnym wyzwaniem. Mała przestrzeń wymagała sprytnych rozwiązań i maksymalnego wykorzystania każdego centymetra.
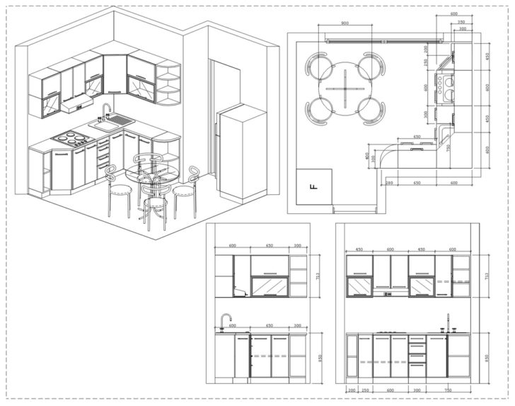
Krok pierwszy: Projekt kuchni od podstaw
Pierwszy krok to dokładne wymiary. Zmierz dokładnie swoją kuchnię. Zwróć uwagę na każdy kąt i wnękę. Pamiętaj o umiejscowieniu okien i drzwi. To podstawa do stworzenia funkcjonalnego układu. Często przestrzeń kuchenna nie jest duża. Dlatego warto zaplanować wszystko tak, aby wykorzystać każdy centymetr. Narysuj plan kuchni w skali. Umieść na nim meble, zlew i sprzęty AGD. Zastanów się nad najbardziej racjonalnym układem.

Profesjonaliści radzą, by sprzęty kuchenne układać w kolejności gotowania. Czyli: lodówka, powierzchnia robocza, zlew, stół do krojenia, płyta. Zachowaj odpowiednie odległości między strefami roboczymi. Odległość nie powinna przekraczać długości dwóch wyciągniętych rąk. Dzięki temu gotowanie będzie wygodne i efektywne.
Rodzaje układów kuchni
Planowanie kuchni zależy od jej kształtu i wielkości. Projektanci wyróżniają pięć głównych układów:
- L-kształtny
- liniowy
- dwurzędowy (galera)
- U-kształtny
- wyspowy
Klasyczny i funkcjonalny układ dla kwadratowych kuchni to L-kształtny. Umożliwia swobodne poruszanie się między strefami: zmywania, przechowywania i gotowania.

Do wąskich pomieszczeń idealnie pasuje układ liniowy. Zabudowana technika pod blatem oszczędza miejsce. W takim układzie warto umieścić zlew na środku długiej ściany. Po obu stronach zlewu umieść blaty robocze. Na końcach ustaw lodówkę i płytę. W małych kuchniach warto zamontować rozkładany stół. Ustaw także inne meble, aby zaoszczędzić miejsce.

Wydłużone pomieszczenia dobrze maskuje układ dwurzędowy lub w kształcie litery G. Z jednej strony można umieścić lodówkę i zlew. Z drugiej – płytę i stół roboczy. Ten układ ma jeden minus: trudniej wydzielić strefę jadalni.

Do przestronnych kuchni pasuje układ U-kształtny. Meble ustawia się wzdłuż trzech ścian. Pozwala to na umieszczenie dużej ilości szafek i sprzętów.

Kuchnie z wyspą są bardzo ciekawe i popularne. W dużych pomieszczeniach na wyspie można umieścić zlew, płytę lub barek. Wybór układu zależy od twoich preferencji, wyobraźni i możliwości.

Pamiętaj o trójkącie roboczym. Lodówka, zlew i kuchenka powinny tworzyć trójkąt. To ułatwia pracę w kuchni. Zmniejsza ilość kroków, które musisz wykonać podczas gotowania.
Podczas projektowania kuchni zwróć uwagę na ergonomię i komfort. Gotowanie powinno zabierać jak najmniej czasu. Układ powinien być wygodny w użytkowaniu.
Krok drugi: Wybór stylu kuchni
Kuchnia, jak każde pomieszczenie, powinna być urządzona w jednym stylu. Inspiracji szukaj w internecie, w sklepach meblowych i katalogach. Zobacz, jakie style kuchni są dostępne. Wybierz modele, kolory i faktury, które ci się podobają.
Kuchnia klasyczna
Klasyka zawsze jest w modzie. Klasyczne kuchnie są popularne. Często wykonane są z drewna, masywne i zdobione rzeźbieniami. Są drogie. Takie meble nie pasują do małej kuchni. Idealnie sprawdzą się w wysokim pomieszczeniu z dużymi oknami. Nadają wnętrzu solidności, spokoju i elegancji. Taka kuchnia będzie ulubionym miejscem domowników.

W 2026 roku obserwujemy powrót do naturalnych materiałów w kuchniach klasycznych. Drewno, kamień i len królują w aranżacjach. Coraz częściej wybierane są blaty z litego drewna dębowego, które dodają wnętrzu ciepła i charakteru.
Kuchnia nowoczesna
Nowoczesne kuchnie charakteryzują się minimalizmem i prostotą. Mają gładkie powierzchnie, brak zdobień i stonowaną kolorystykę. Często wykorzystuje się w nich szkło, metal i tworzywa sztuczne. Nowoczesne kuchnie są funkcjonalne i łatwe w utrzymaniu czystości.
Uważaj na tanie tworzywa sztuczne. Mogą wydzielać szkodliwe substancje. Wybieraj materiały z certyfikatami jakości. Sprawdź, czy dany plastik nie zawiera BPA.
Cechy charakterystyczne nowoczesnej kuchni:
- Fronty: Gładkie, lakierowane na wysoki połysk lub matowe.
- Uchwyty: Często niewidoczne, zintegrowane z frontami.
- Blaty: Z kompozytów, kamienia lub szkła.
- Sprzęt AGD: Nowoczesny, energooszczędny, często zintegrowany z meblami.
- Oświetlenie: LED, punktowe, podkreślające architekturę wnętrza.
Kiedy projektowałem kuchnię w stylu nowoczesnym, postawiłem na blaty z konglomeratu kwarcowego. Są bardzo odporne na zarysowania i wysokie temperatury. Dodatkowo, ich gładka powierzchnia jest łatwa w czyszczeniu.
Pamiętaj o odpowiednim oświetleniu. W nowoczesnej kuchni warto zastosować kilka źródeł światła. Oświetlenie główne, punktowe i dekoracyjne. To stworzy przyjemną atmosferę.
Kuchnia rustykalna
Kuchnia rustykalna to połączenie tradycji i natury. Charakteryzuje się ciepłymi kolorami, naturalnymi materiałami i sielskim klimatem. W rustykalnej kuchni znajdziemy drewniane meble, kamienne blaty i ceramiczne płytki. Ważnym elementem są dekoracje: zioła, kwiaty, rękodzieło.
Elementy kuchni rustykalnej:
- Meble: Drewniane, postarzane, z widocznymi słojami.
- Blaty: Kamienne, drewniane, z naturalnymi nierównościami.
- Podłoga: Drewniana, z desek lub kamienna.
- Ściany: Malowane na ciepłe kolory, pokryte tapetą z motywem kwiatowym lub ziołowym.
- Dodatki: Kosze wiklinowe, ceramiczne naczynia, suszone zioła, kwiaty.
Kiedy projektowałem rustykalną kuchnię, użyłem starych desek ze stodoły do obłożenia wyspy kuchennej. Dodało to wnętrzu autentycznego charakteru. Pamiętaj, że naturalne światło w kuchni rustykalnej gra ważną rolę.
Krok trzeci: Wybór materiałów i kolorów
Materiały i kolory mają ogromny wpływ na wygląd i atmosferę kuchni. Wybieraj materiały trwałe, łatwe w utrzymaniu czystości i odporne na wilgoć. Kolory powinny być dopasowane do twojego gustu i stylu życia. Pamiętaj o psychologii kolorów. Niektóre kolory pobudzają apetyt, inne uspokajają.
Najpopularniejsze materiały do kuchni w 2026 roku:
- Drewno: Dąb, jesion, buk, orzech.
- Kamień: Granit, marmur, kwarcyt.
- Kompozyty: Konglomerat kwarcowy, corian.
- Szkło: Hartowane, lakierowane.
- Stal nierdzewna: Na fronty, blaty, okapy.
Według najnowszych trendów w 2026 roku, w kuchniach królują kolory ziemi. Beże, brązy, szarości i zielenie są najczęściej wybierane. Coraz popularniejsze stają się także odcienie terakoty i rdzy.
Psychologia kolorów w kuchni:
- Czerwony: Pobudza apetyt, dodaje energii.
- Żółty: Poprawia nastrój, dodaje optymizmu.
- Pomarańczowy: Wzmacnia apetyt, sprzyja komunikacji.
- Zielony: Uspokaja, relaksuje, kojarzy się z naturą.
- Niebieski: Hamuje apetyt, wycisza.
- Biały: Optycznie powiększa przestrzeń, dodaje czystości.
- Czarny: Elegancki, nowoczesny, ale może przytłaczać.
Naturalne światło w Krakowie jest specyficzne. Często bywa ostre, szczególnie latem. Dlatego w moich projektach staram się wykorzystywać kolory, które je łagodzą. Zieleń i błękit świetnie się sprawdzają.
Krok czwarty: Ergonomia i funkcjonalność
Ergonomia w kuchni to podstawa. Wszystko powinno być pod ręką. Blaty robocze powinny być na odpowiedniej wysokości. Szafki powinny być łatwo dostępne. Sprzęt AGD powinien być umieszczony w strategicznych miejscach.
Zasady ergonomii w kuchni:
- Wysokość blatu roboczego: Powinna być dostosowana do twojego wzrostu. Zbyt niski blat powoduje bóle kręgosłupa.
- Układ szafek: Górne szafki powinny być łatwo dostępne. Dolne szafki powinny mieć systemy wysuwne.
- Oświetlenie: Blaty robocze powinny być dobrze oświetlone.
- Przestrzeń robocza: Powinna być wystarczająco duża, aby swobodnie gotować.
- Odległości: Między strefami roboczymi powinny być optymalne.
Nie przeciążaj szafek. Zbyt ciężkie przedmioty mogą uszkodzić zawiasy. Regularnie sprawdzaj stan zawiasów i prowadnic. Wymieniaj je w razie potrzeby.
W małej kuchni ergonomia jest szczególnie ważna. Wykorzystaj każdy centymetr przestrzeni. Zainwestuj w systemy przechowywania, które ułatwią ci życie.
Przykłady ergonomicznych rozwiązań do małej kuchni:
- Szafki narożne z systemami obrotowymi.
- Wysuwane kosze cargo.
- Półki na przyprawy montowane na drzwiach szafek.
- Wieszaki na garnki i patelnie.
- Składane blaty robocze.
Krok piąty: Oświetlenie w kuchni
Oświetlenie w kuchni to ważny element. Wpływa na funkcjonalność i atmosferę. W kuchni powinno być kilka źródeł światła: główne, robocze i dekoracyjne.
Rodzaje oświetlenia w kuchni:
- Oświetlenie główne: Lampy sufitowe, żyrandole.
- Oświetlenie robocze: Lampy podszafkowe, reflektory.
- Oświetlenie dekoracyjne: Listwy LED, kinkiety.
Barwa światła ma wpływ na nastrój. Ciepłe światło sprzyja relaksowi, zimne światło pobudza do działania. W kuchni warto zastosować oświetlenie o neutralnej barwie.
Wskazówki dotyczące oświetlenia w kuchni:
- Oświetl blaty robocze. Zapewnij dobre oświetlenie podczas gotowania.
- Oświetl stół. Stwórz przyjemną atmosferę podczas posiłków.
- Oświetl szafki. Ułatw sobie znalezienie potrzebnych przedmiotów.
- Zastosuj ściemniacze. Reguluj natężenie światła w zależności od potrzeb.
- Wybierz energooszczędne żarówki. Zmniejsz rachunki za prąd.
Kiedy projektuję oświetlenie w kuchni, zawsze biorę pod uwagę naturalne światło. Staram się je maksymalnie wykorzystać. Dodatkowo, dobieram oświetlenie sztuczne, które uzupełnia braki.
Krok szósty: Dodatki i dekoracje
Dodatki i dekoracje nadają kuchni charakteru. Wybieraj dodatki, które pasują do stylu kuchni. Pamiętaj o funkcjonalności. Dodatki powinny być nie tylko ładne, ale także praktyczne.
Przykłady dodatków i dekoracji do kuchni:
- Rośliny. Ożywiają wnętrze, dodają świeżości.
- Zioła w doniczkach. Praktyczne i dekoracyjne.
- Obrazy, grafiki. Nadają kuchni indywidualny charakter.
- Tekstylia. Zasłony, obrusy, ściereczki.
- Naczynia. Ceramiczne, szklane, drewniane.
- Pojemniki na przyprawy. Praktyczne i dekoracyjne.
Wykorzystaj stare przedmioty. Daj im drugie życie. Stara deska do krojenia może stać się oryginalną dekoracją. Słoiki po dżemie idealnie nadają się do przechowywania przypraw.
Pamiętaj, że dodatki i dekoracje powinny odzwierciedlać twoją osobowość. Stwórz kuchnię, w której będziesz się czuć dobrze.
Nowoczesna kuchnia w 2026 roku to przede wszystkim funkcjonalność, minimalizm i naturalne materiały. Wybierając meble i dodatki, warto zwrócić uwagę na ich jakość i trwałość. Kuchnia powinna być miejscem, w którym z przyjemnością będziesz spędzać czas.

No dobra, niby spoko, ale czy to nie za dużo roboty, żeby tylko kuchnia wyglądała jak u babci na wsi? I tak pewnie skończy się na jednym kwiatku w doniczce. 🤷♂️
Wow, kuchnia w stylu rustykalnym w bloku? Brzmi trochę jak wyzwanie z Simsów! 🏡🤔 Ciekawe, czy uda mi się przekonać rodziców do takiego remonciku? Stare z nowym brzmi spoko! 🤩 )
Super! Zawsze marzyłam o takiej swojskiej kuchni, ale myślałam, że to tylko do domów na wsi pasuje. A tu proszę, da się i w bloku! Może w końcu odważę się na te babcine zasłonki w kratkę? 😍🏡
OMG, kuchnia w stylu rustykalnym w bloku? To brzmi jak coś totalnie z mojej bajki! 😍 Zawsze marzyłam o takim wiejskim klimacie, a mieszkanie w bloku to nie przeszkoda! Muszę zaraz pokazać mamie, może razem coś wykombinujemy! 🤩